송파거여 도시형생활주택 신축공사 > 참여작

본문 바로가기

사이트 내 전체검색

참여작

송파거여 도시형생활주택 신축공사

페이지 정보

작성자 최고관리자 작성일 24-09-25 23:26 조회 93회 댓글 0건

본문


실시설계


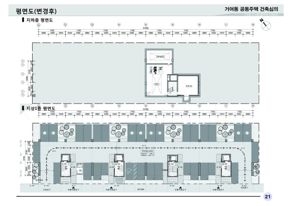
설계개요

사업명: 거여동 도시형주택(단지형연립주택) 신축공사

대지위치: 서울특별시 송파구 거여동 2-94필지

지역지구: 도시지역, 2종일반주거지역(7층이하)

대지면적: 1,139.10

건축면적: 603.90

연면적: 2,360.39

건폐율: 53.02 %

용적율: 199.92 %

용도: 도시형생활주택(단지형연립주택)

세대수: 39세대

규모: 지하1, 지상6

 

b039ac7a94efdb5743e68c8c4bcd68b8_1727274322_7618.jpg
b039ac7a94efdb5743e68c8c4bcd68b8_1727274323_3923.jpg
b039ac7a94efdb5743e68c8c4bcd68b8_1727274323_9925.jpg
b039ac7a94efdb5743e68c8c4bcd68b8_1727274324_5659.jpg
b039ac7a94efdb5743e68c8c4bcd68b8_1727274325_1415.jpg
b039ac7a94efdb5743e68c8c4bcd68b8_1727274325_6979.jpg
b039ac7a94efdb5743e68c8c4bcd68b8_1727274326_33.jpg
 

b039ac7a94efdb5743e68c8c4bcd68b8_1727274342_6232.jpg
b039ac7a94efdb5743e68c8c4bcd68b8_1727274343_1812.jpg
b039ac7a94efdb5743e68c8c4bcd68b8_1727274343_676.jpg
b039ac7a94efdb5743e68c8c4bcd68b8_1727274344_1161.jpg
b039ac7a94efdb5743e68c8c4bcd68b8_1727274344_5314.jpg
b039ac7a94efdb5743e68c8c4bcd68b8_1727274344_9254.jpg
b039ac7a94efdb5743e68c8c4bcd68b8_1727274345_4668.jpg
b039ac7a94efdb5743e68c8c4bcd68b8_1727274346_0618.jpg
 

댓글목록

등록된 댓글이 없습니다.

서울특별시 서초구 서운로 24, 6층(서초동, 서일빌딩) | 대표이사: 정윤승
T. 02-888-3011 | F. 0504-406-3011 | E. 2a-architec@naver.com
Copyright © 투에이플랜건축사사무소. All rights reserved.ADMIN